
This 24-foot kitchen trailer is a fully equipped, mobile solution for large-scale food service operations. Featuring essential equipment including cooktops, fryers, and commercial-grade refrigeration, it’s built to handle food prep, cooking, and storage with ease. Climate-controlled and outfitted with fire suppression systems, it ensures safety and comfort in any environment. Ideal for catering events of all types or emergency response, this versatile unit is designed for reliable performance wherever it’s needed.
Full Spec SheetOur 53-foot mobile kitchen trailers are also industrial scale assets that have been custom designed for the diverse needs of varied deployment missions. Very similar to the 57’ kitchen, except with six ovens aboard instead of eight, it contains all the cooking and production, cold storage, food preparation and sanitation equipment on board to sustain large basecamps, commercial kitchen remodels, and large-scale events.
Full Spec SheetOur 44-foot mobile kitchen trailer is a strategic mobile asset also containing industrial-scale equipment for food cooking production, preparation, and cold storage. Nicknamed ‘Baby Beast,’ the field kitchen vehicle’s production equipment includes numerous ovens, a 6-burner range, griddle, car-broiler, fryers, tilting skillet, and pan steamer onboard.
Full Spec SheetOur 44-foot mobile kitchen trailer is a strategic mobile kitchen, custom-designed to provide the diverse needs of varied deployment missions and events. The trailer features industrial-scale equipment for food cooking production, preparation, and cold storage.
Full Spec SheetOur Ansul Skid System is the perfect solution for optimizing kitchen equipment while maximizing valuable space and minimizing installation and production downtime. Designed and fabricated in a controlled environment, our skids are built with the highest quality materials and can be tailored to fit specific locations, taking up minimal floor space on your site. Additionally, our skids feature an advanced fire suppression system, ensuring that your worksite is always safe and protected
Full Spec SheetThe 28’ Mobile Dishwashing Trailer is a fully equipped, high-capacity mobile unit designed to handle commercial dishwashing needs in temporary, remote, or off-site locations. Engineered for efficiency, reliability, and compliance with industry standards, this unit features a Hobart high-temp conveyor dishwasher, stainless steel prep areas, and a tankless hot water system to ensure continuous operation.
Full Spec SheetOur 32-foot dishwashing trailer is capable of cleaning 10-14K dishes per hour and features a new efficient and reliable Hobart FT 1000 Flight Type dish machine, which only utilizes a final rinse rate of 58 gal/hr. Nicknamed ‘Clean Machine,’ the trailer features a 100 gal hot water heater, stainless worktables and Ecolab chemical dispensers to ensure unencumbered production and optimal sanitation support for our industrial mobile kitchens.
Full Spec SheetOur 20’ dishwashing container provides a compact event solution with high throughputand capability. The EC-44 dish machine can clean 244 racks per hour, and its extended 18” wash section and separate wash and rinse areas provide consistent hygienic results. The container also features an efficient on-demand hot water heater, pre-wash and washsinks, worktables, and more to support culinary operations.
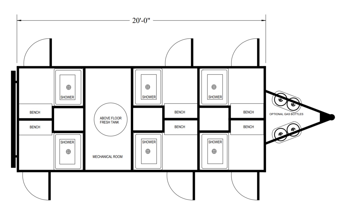
Full Spec SheetOur 20’ shower trailer features 6 private suites individually accessed on both sides ofthe trailer, each with a deadbolt locked changing area containing benches, mirrors and clothing wall hooks.
Full Spec SheetOur luxury shower trailer features 8-private suites each with a changing area, shower and private lock. Powered by tank-less water heaters, the mobile shower has configuration flexibility for optimized male/female utilization to support varied field missions, and features non-wood seamless wall, floor and ceiling construction that optimizes cleanliness while minimizing mold and mildew. it features:
Our 19’ ADA Shower/Restroom Combo +1 Trailer combines a wheelchair accessible restroom and shower combo unit with one standard private unisex restroom. It delivers a private and safe environment with abundant space for maneuverability and all the accessibility features individuals with special needs require, as well as AC/Heat, heated running water, advanced flushing toilets, and luxurious interiors and amenities. The ADA unit’s gently sloping ramp and spacious platform provides ample room for easy navigation to enter and exit. With intelligent and durable construction, quick and simple set-up, comfortable, climate-controlled interiors, luxury amenities, tankless water heaters, and advanced flushing toilets, this is really the only way to go for holistic mobile ADA-compliant facilities in any environment!
Full Spec SheetOur 28’ Mobile Laundry Trailer supports multi-day events and basecamp operations with on-site fluff and fold laundry services, utilizing nine separate onboard washers and dryers. Supported by multiple tankless water heaters, the trailer’s equipment delivers advanced wash cycle and temperature control options, and numerous dry options, alongside a laundry sink and on-board drying racks to facilitate laundry services rapidly and professionally, virtually anywhere.
Full Spec SheetOur luxury restroom trailers provide a rich warm environment that offers responders and evacuees a few basic home comforts in the field environment. All deluxe mobile restrooms feature quartz counters, custom wall treatments and vessel sinks for users, while employing manufacturing and materials designed to maintain high hygiene standards and lower maintenance requirements for operators. The 14-foot restroom trailer features four stations and two sinks; the 20-foot features eight stations; while our larger 25-foot restroom features ten stations and four sinks; each can be configured to provide separate facilities and sinks for men and women.
Full Spec SheetThe vehicle’s twin-compartment lite weight aluminum tank allows for both fresh and wastewater to be stored during operation, enhancing efficiency and convenience. Internal baffles help keep the fluids from sloshing around, making it easier for drivers to maneuver and stop quickly. Each truck comes with a 1/8” aluminum work area and cabinets that maintain a clean, polished appearance at all times.
Full Spec Sheet
Powered by a heavy duty, 4-cycle, direct injection, turbocharged, charge air-cooled diesel engines, our line of kVA generators provide maximum reliability, low-noise operation, and precise voltage control for superior motor starting capability. We have several common power ranges depending on your need – 70 kVA, 180 kVA, and 300 kVA.
Our PAC kitchen provides a compact event or remodeling solution with high through put capability, along with a special ability to custom configure the industrial culinary equipment on board beneath the ventilation system that runs the length of the container.This flexibility allows for optimized efficiency, and permits the system to be configured standard with a variety of food production assets, or reconfigured to enhance capability for a particular type of food service production equipment.
Full Spec Sheet
With a sleeping capacity of seven, our recreation vehicle fleet provides flexible, efficient and accommodating billeting solutions with desired amenities and luxuries for those operating in field environments. Sleeping accommodations are provided in two separate bedrooms as well as a convertible sleeper sofa in the main cabin, and include a queen bed with innerspring mattress in the first bedroom and a double bunk atop the double bed in the rear bedroom.
The vehicle features an expandable, spacious central room surrounding the kitchen. The kitchen features a double door refrigerator with freezer, (3) burner cook top with hood light and exhaust, a microwave oven, a 50/50 residential style sink and a multi-purpose inside/outside dinette table. The restroom contains both a shower and a bathtub, as well as its own separate exterior exit, sink/ vanity with medicine cabinet and a convenient foot flush toilet. The vehicle also features an audio entertainment system with interior and exterior speakers, cable TV hook-up, and crank-up TV antenna with signal booster.